 
  
  
 Ausgewählte Projekte
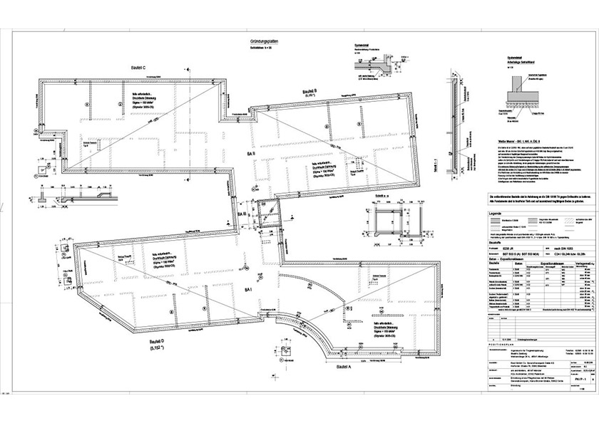
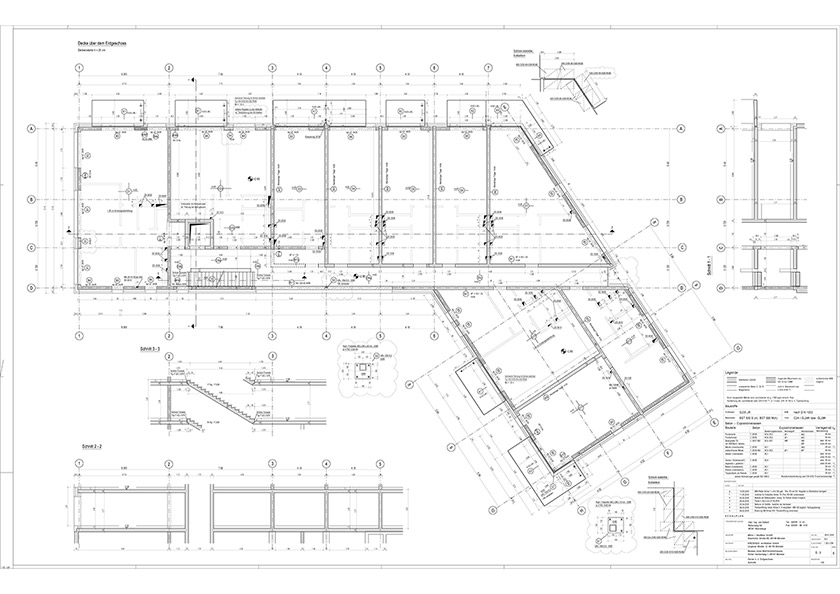
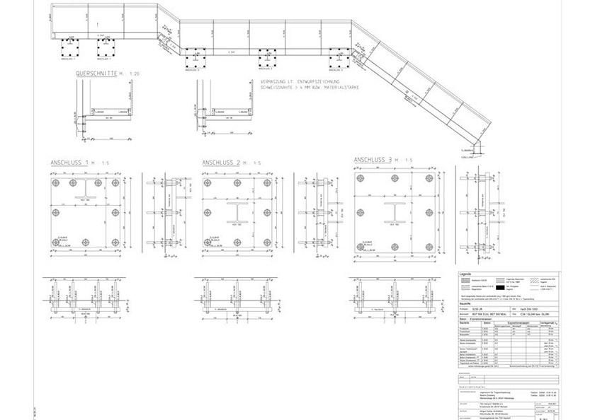
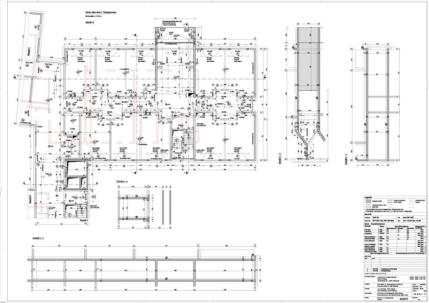
-  Ludgerischule Umbau 
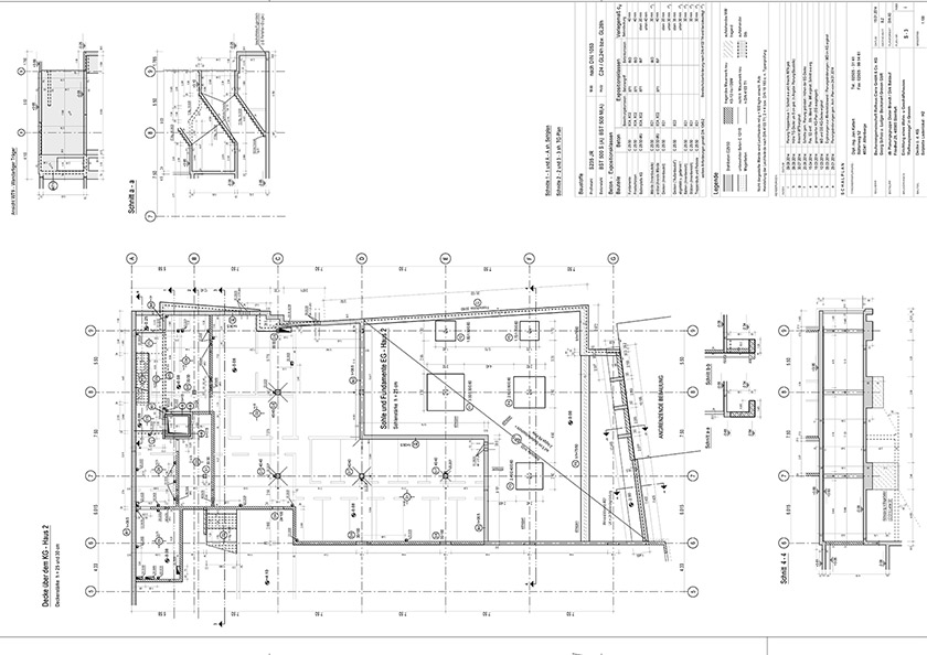
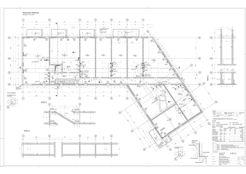
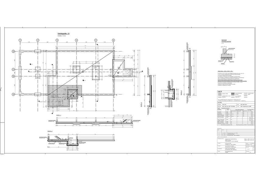
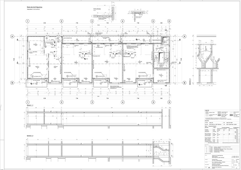
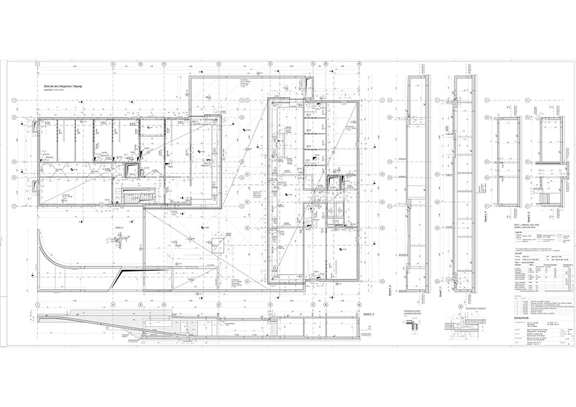
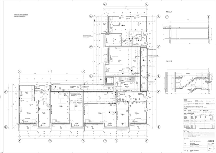
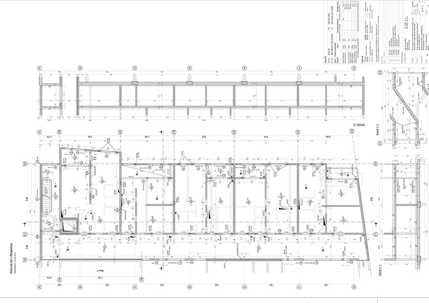
 Tragwerksplanung Umbau Schulgebäude2021 - 24 
 Ludgerischule in AltenbergeAltbau 1970 - Anbau 1982 - Aufstockung 2003 Bauherr: Gemeinde Altenberge Kirchstraße 25 48341 Altenberge Planung: farwick + grote Architekten BDA Stadtplaner Part.mbB Van-Delden-Straße 15 48 683 Ahaus 
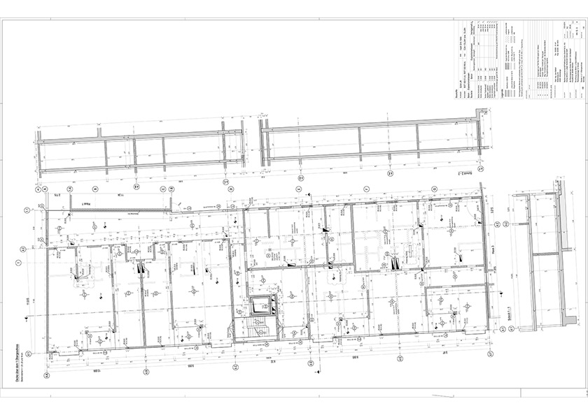
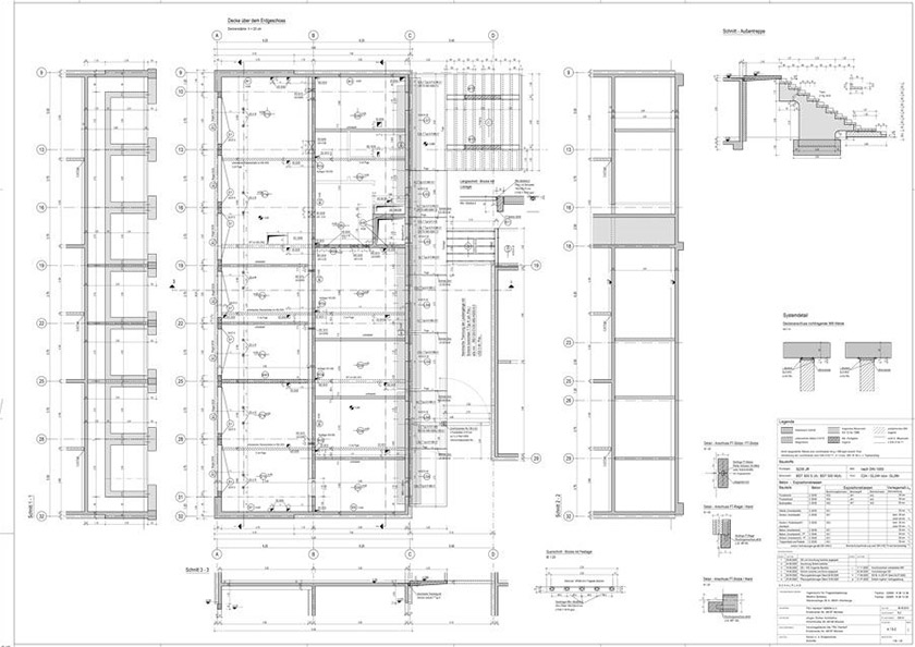
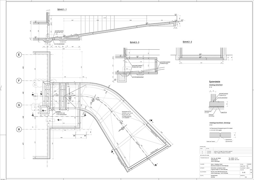
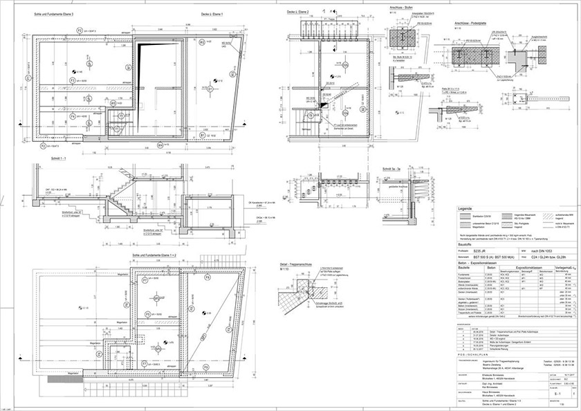
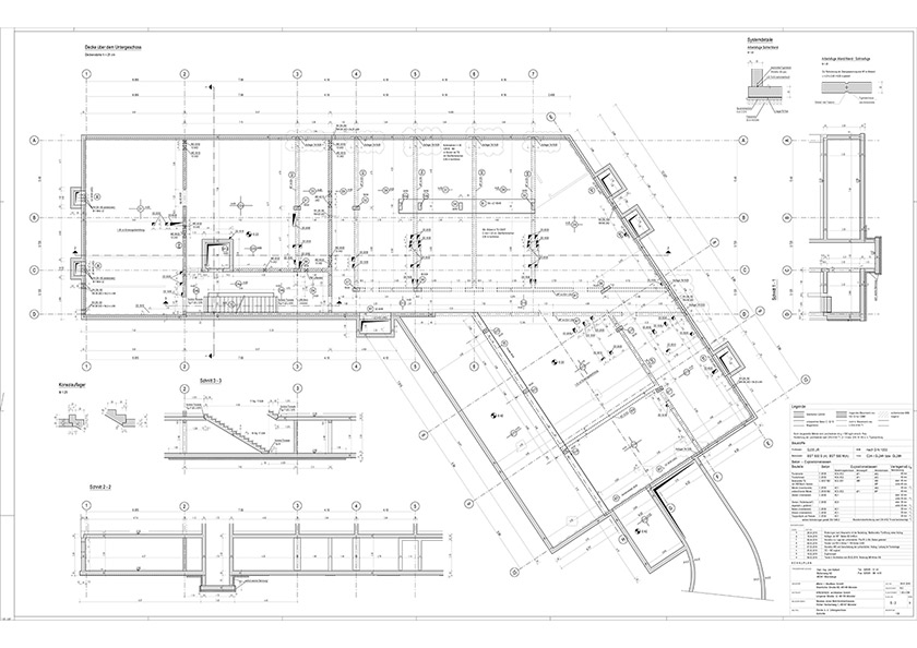
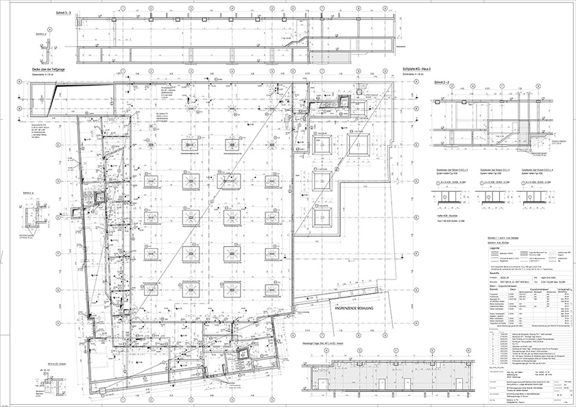
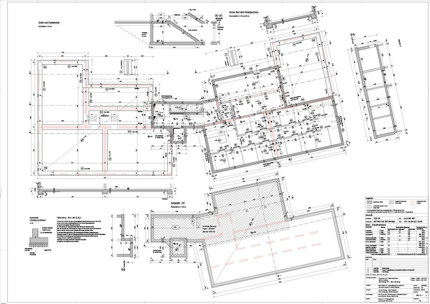
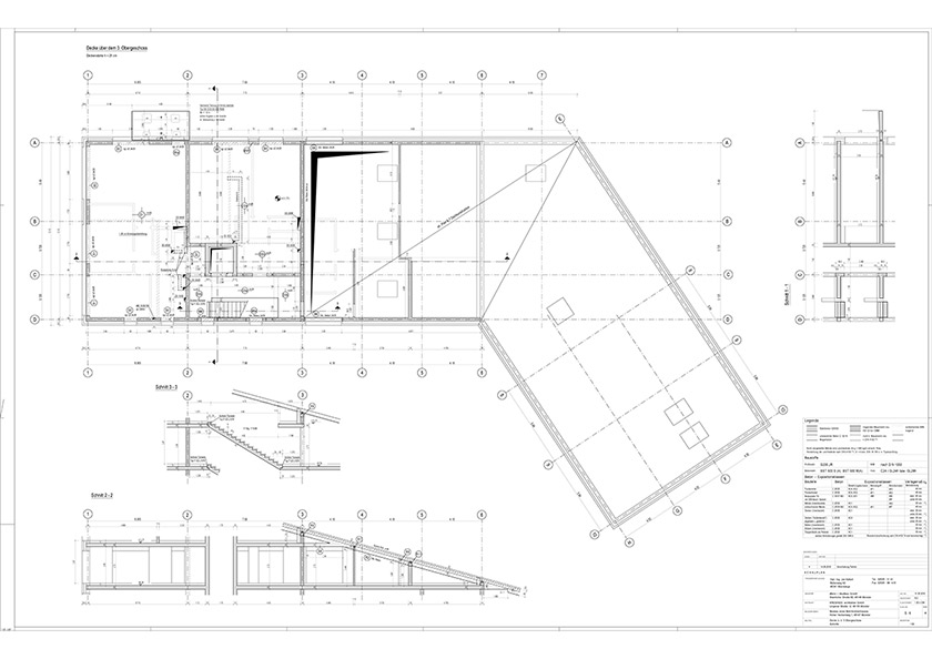
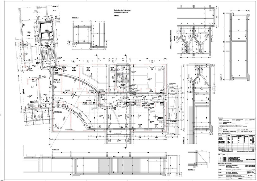
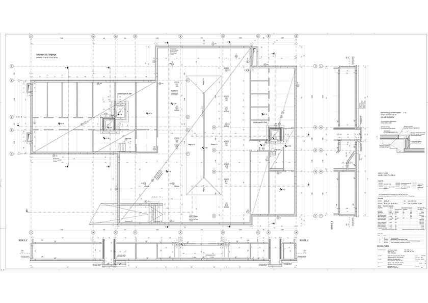
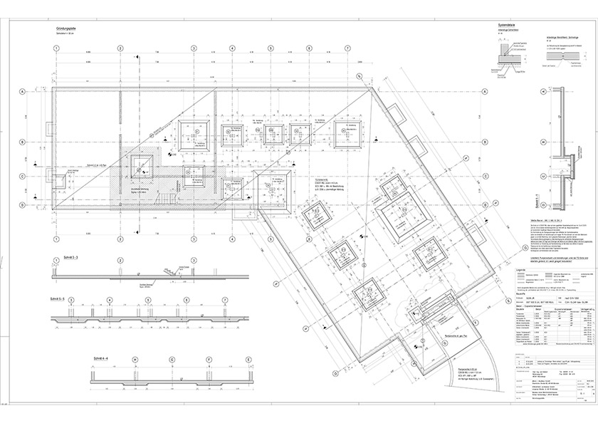
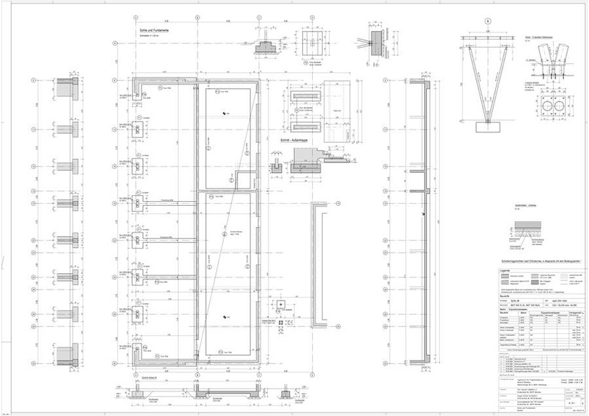
-  Neubau der Grundschule in Altenberge Tragwerksplanung Schulgebäude 2021-24 Bauherr: Gemeinde Altenberge Kirchstraße 25 48341 Altenberge Planung: farwick + grote Architekten BDA Stadtplaner Part.mbB Van-Delden-straße 15 48683 Ahaus 
-  Vereinsgebäude in Münster Handorf Tragwerksplanung Gebäude für Sportanlage 2019-21 Bauherr: TSV Handord 1926/64 e.V. Hobbeltstraß 132 48157 Münster Planung: Architekten Jörgen Dreher & Björn Jung Hittorfstraße 26 48149 Münster 
-  Wohnungen im Generationenpark Oelde Tragwerksplanung Wohngebäude 2020 Bauherr: Reid GmbH Co. Generationspark Oelde KG Herforder Straße 76 33602 Bielefeld Planung: ars architekten, 48147 Münster H2o Architekten, 33102 Paderborn 
-  Pflegeheim im Generationenpark Oelde Tragwerksplanung Pflegeheim 2019 - 2020 Bauherr: Reid GmbH Co. Generationspark Oelde KG Herforder Straße 76 33602 Bielefeld Planung: ars architekten, 48147 Münster H2o Architekten, 33102 Paderborn 
-  Neubau eines Bürogebäudes in Altenberge Tragwerksplanung Bürogeb. mit Teilkeller 2019 Bauherr: CSG Aupos Handels GbR Feldstiege 100 48161 Münster Planung: Jörg Suwelack Architekten Martinistraße 51 48268 Greven 
-  Atelierhaus für Studenten in Münster Tragwerksplanung für Wohnbebauung 2018 Bauherr: WGW GbR Gutenbergstr. 9 48145 Münster Planung: parallelprojekt architekten Dipl.Ing.Arch. Thomas Westerloh Von-Vicke-Straße 5-7 48143 Münster 
-  Einfamilienhaus in Havixbeck Tragwerksplanung für EFH 2018 Bauherr: Eheleute Binnewies Havixbecker Straße 195 48161 Münster Planung: Kai Binnewies Dipl.Ing.Arch. 
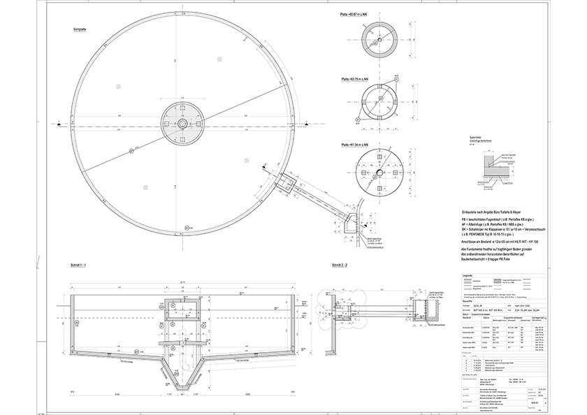
-  Erweiterung der Kläranlage Altenberge Fertigstellung 2017 Nachklärbecken, Vorklärbecken, Betriebsgebäude, Gründung für Schlammsilo und Gasfackel Bauherr: Gemeinde Altenberge 48341 Altenberge Planung: Tuttahs & Meyer Ing.-GmbH Wasser, Abwasser und Energie 52066 Aachen Baufirma: Arning Bauunternehmung GmbH 48565 Steinfurt 
-  Städtisches Wohnen auf dem Hohen Heckenweg Wohnbebauung mit Tiefgarage 2016 28 WE + Untergeschoss - BRI ca. 9240 m2 Bauherr: Wohn+Stadtbau GmbH 48149 Münster Planung: KRESINGS architektur GmbH 48155 Münster 
-  Wohn-/Geschäftshaus 'Rathaus-Passage' in Greven Vier Gebäude mit Wohnungen, Einzelhandelsflächen, Gastronomie, Arzt- und Klinikeinrichtungen, Sozialstation, begrünter Innenhof Tiefgarage mit 64 Stellplätzen / 2014-2015 BRI ca. 54.330 m2 Bauherr: Rathaus-Carreé GmbH & Co. KG 48356 Nordwalde Planung: db Planungsgruppe 48565 Steinfurt 
-  Neubebauung "Paulushof" in Münster-Mecklenbeck Zwei Wohnhäuser mit Jugendzentrum 2015 30 WE + Gemeinschaftsräume BRI ca. 11.000 m3 Bauherr: Paulushof GmbH 48356 Nordwalde Planung: bk/a - Bleckmann und Krys Architekten 48145 Münster 
-  Wohnen an der Kirche St. Theresia in Münster Zwei Wohngebäude mit Tiefgarage 2013-2014 16 WE + Untergeschoss BRI ca. 6.00 m3 Bauherr: Kath. Kirchengemeinde St. Theresia 48149 Münster Planung: BURHOFF und BURHOFF Architekten BDA 48143 Münster 
 
  
  
  
  
  
  
  
  
  
  
  
  
  
  
  
  
  
  
  
  
  
  
  
  
  
  
  
  
  
  
  
  
  
  
  
  
  
  
  
  
  
  
  
  
  
  
  
  
  
  
  
  
  
  
  
  
  
  
  
  
  
  
  
  
  
  
  
  
  
  
  
  
  
  
  
  
  
  
  
  
  
  
  
  
  
  
  
  
  
  
  
  
  
  
  
  
  
  
  
 